00件
最近見た物件
00件
検討リスト
大阪府下全域の売買物件情報はアズマハウス株式会社 大阪支店 > (戸建(売買))地域から探す > 堺市東区 > ライフフィールド草尾Ⅳ > 物件詳細
【ライフフィールド草尾Ⅳ】完成☆収納豊富で暮らしやすさを重視した3LDK!プライバシーや陽当り・通風を考慮した2階LDKは16帖♪LDKの3面床暖房/ミストカワック/食洗機付き!日々の暮らしに嬉しい標準仕様◎室内随所に豊富な収納スペースを設け、空間スッキリ♪洋室2部屋にはお勉強やお仕事に便利なカウンターを設置!住宅性能評価付◎省令準耐火&耐震等級3+制震ダンパー&熱交換式換気の充実設備・仕様です!
【外観】【ライフフィールド草尾Ⅳ】南海高野線「北野田」駅まで徒歩20分。住宅性能評価付き!地震にも強い耐震+制震構造です。
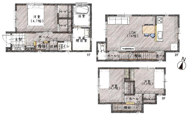
【間取り】全居室5.6帖以上のゆったり3LDK!豊富な収納スペースやカウンターなど、家族みんなの暮らしやすさを重視した間取りです。
※写真や図と実際の現状とが異なる場合は現状を優先させていただきます。











(※元利均等方式 金利5.00%まで ※返済年数5~50年まで入力できます)
(※ボーナスは年2回で計算しています。1000万円まで入力できます)
(※物件購入時、その他諸費用が発生する場合がございます)
| 所在地 | 大阪府堺市東区草尾 | ||
|---|---|---|---|
| 交通 | |||
| 間取り/詳細 |
3LDK/ 洋室 6.7帖 1室/LDK 16.0帖 1室/洋室 6.3帖 1室/洋室 5.6帖 1室 |
建物面積(坪数) | 94.52㎡(28.59坪) |
| 価格 | 2,980万円 | ||
| 駐車場/月額料金 | 有(1台)/0円 | ||
| 土地の敷金/保証金 | -/- | 借地料/借地期間 | -/- |
| 土地権利 | 所有権 | 土地面積(坪数) | 67.74㎡(20.49坪) |
| 傾斜地部分面積 | - | 路地状敷地 | - |
| 私道負担面積/セットバック |
112.00㎡/無 私道負担割合 : 1/36 |
高圧線下面積 | - |
| 地目/地勢 | 宅地/平坦 | 接道状況 | 一方(南西 私道 4.7m 間口 5.4m) |
| 建ぺい率/容積率 | 70%/188% | 用途地域 | 第一種住居 |
| 都市計画 | 市街化区域 | 種別/構造 | 新築一戸建/木造 |
| 階建 | 3階建 | 築年月(築年数) | 2025年 10月 (新築) |
| 総区画数/販売区画数 | 1区画/1区画 | 向き | - |
| 現況 | 完成済み | その他の法令上の制限 | 景観法/準防火地域 |
| 取引態様/引渡時期 | 売主/2025年10月上旬 | 建築確認番号 | 第OKBC24C01-02976号 |
| 物件番号 | 92154245 | 取引条件の有効期限 | 2025年11月24日 |
| 設備条件 |
|
||
| 備考 |
◇登美丘西小学校◇登美丘中学校※登記弊社指定 ●当社新築建売住宅をご購入の方を対象に、 「住宅ローンサポート ご成約キャンペーン」実施中! キャンペーン期間:2025年11月30日(日)まで 詳しくはお問い合わせください! |
||
| 取扱会社 |
|
||
| QRコード |
このQRコードを読み取ることで、スマホでも物件情報を確認できます。 |
||
※地図上に表示される物件の位置は付近住所に所在することを表すものであり、実際の物件所在地とは異なる場合がございます。
ライフフィールド草尾Ⅳに関するこだわり条件から探す
堺市東区以外の市区町村から探す